Trong các kích thước giấy, thì khổ giấy A4 được mọi người sử dụng phổ biến nhiều trong lĩnh vực đời sống. Tuy nhiên, bạn đã biết kích thước khổ giấy A4 là bao nhiêu cm chưa? Hãy cùng mình tìm hiểu về các tiêu chuẩn quốc tế quy định cỡ giấy A4 trong bài viết dưới đây nhé.
1. Đầu tiên là tiêu chuẩn của giấy A4
Tiêu chuẩn của quốc tế IOS 216 là gì?
ISO 216 là bộ quy định về khổ giấy, phân loại về các định dạng giấy khác nhau dựa trên các kích thước của bảng để tạo ra một tiêu chuẩn quốc tế. Chúng được xây dựng trên tiêu chuẩn DIN 476 của Đức. Đơn vị khổ giấy theo tiêu chuẩn ISO 216 là mm.
-
Kích thước của khổ giấy luôn được viết theo quy ước là chiều ngắn hơn viết trước.
-
Tất cả các khổ trong dãy A, B, C đều là hình chữ nhật, tỷ lệ 2 cạnh là
.
-
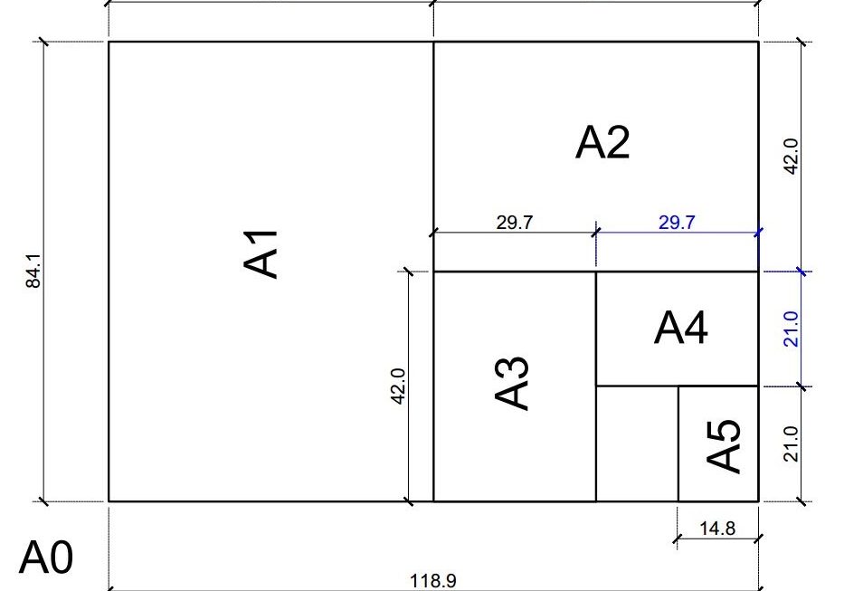
Theo quy định, diện tích của khổ giấy A0 là 1m², từ đó ta tính được các cạnh cảu khổ giấy A0 là 841x1189mm.
-
Các khổ trong cùng một dãy sẽ được xác định lùi dần theo thứ tự, diện tích khổ sau bằng 50% diện tích khổ trước (được chia bằng cách cắt khổ trước theo đường cắt song song với cạnh ngắn).
-
Các khổ của dãy B được suy ra bằng cách lấy trung bình nhân các khổ kế tiếp nhau của dãy A
-
Các khổ của dãy C được suy ra bằng cách lấy trung bình nhân các khổ của dãy A và B tương ứng
|
Cỡ giấy |
Kích thước (mm) |
Kích thước (cm) |
|
A0 |
841 × 1189 |
118,0 × 84,1 |
|
A1 |
594 × 841 |
84,1 × 59,4 |
|
A2 |
420 × 594 |
59,4 × 42 |
|
A3 |
297 × 420 |
42 × 29,7 |
|
A4 |
210 × 297 |
29,7 × 21 |
|
A5 |
148 × 210 |
21 × 14.8 |
|
A6 |
105 × 148 |
14,8 × 10,5 |
|
A7 |
74 × 105 |
10,5 × 7,4 |
|
A8 |
52 × 74 |
7,4 × 5,2 |
|
A9 |
37 × 52 |
5,2 × 3,7 |
|
A10 |
26 × 37 |
3,7 × 2,6 |
Tỷ lệ khổ giấy

Để dễ hiểu các bạn có thể hình dung theo cách sau: A0 là khổ giấy lớn nhất, chia đôi thì sẽ thành 2 khổ giấy A1, A1 chia đôi thành 2 khổ A2 và tương tự vậy.
Nơi mua bán giấy A4 uy tín
Với phương châm “UY TÍN LÀ CHẤT LƯỢNG”, phong cách phục vụ chuyên nghiệp, chăm sóc khách hàng chu đáo, Công ty SANG HÀ chúng tôi cam kết đảm bảo mang đến cho Quý khách hàng những dịch vụ và sản phẩm đúng chất lượng, nguồn gốc và giá thành tốt nhất, tuyệt đối không có hàng kém chất lượng, hàng giả hoặc giá thành cao.
Địa chỉ: Số 158, Đường 19/5, P. Tây Thạnh, Q. Tân Phú, TP. Hồ Chí Minh (KCN Tân Bình)
Điện thoại: 09 34567 670
Số fax: (028) 38 123 011